

Partager sur
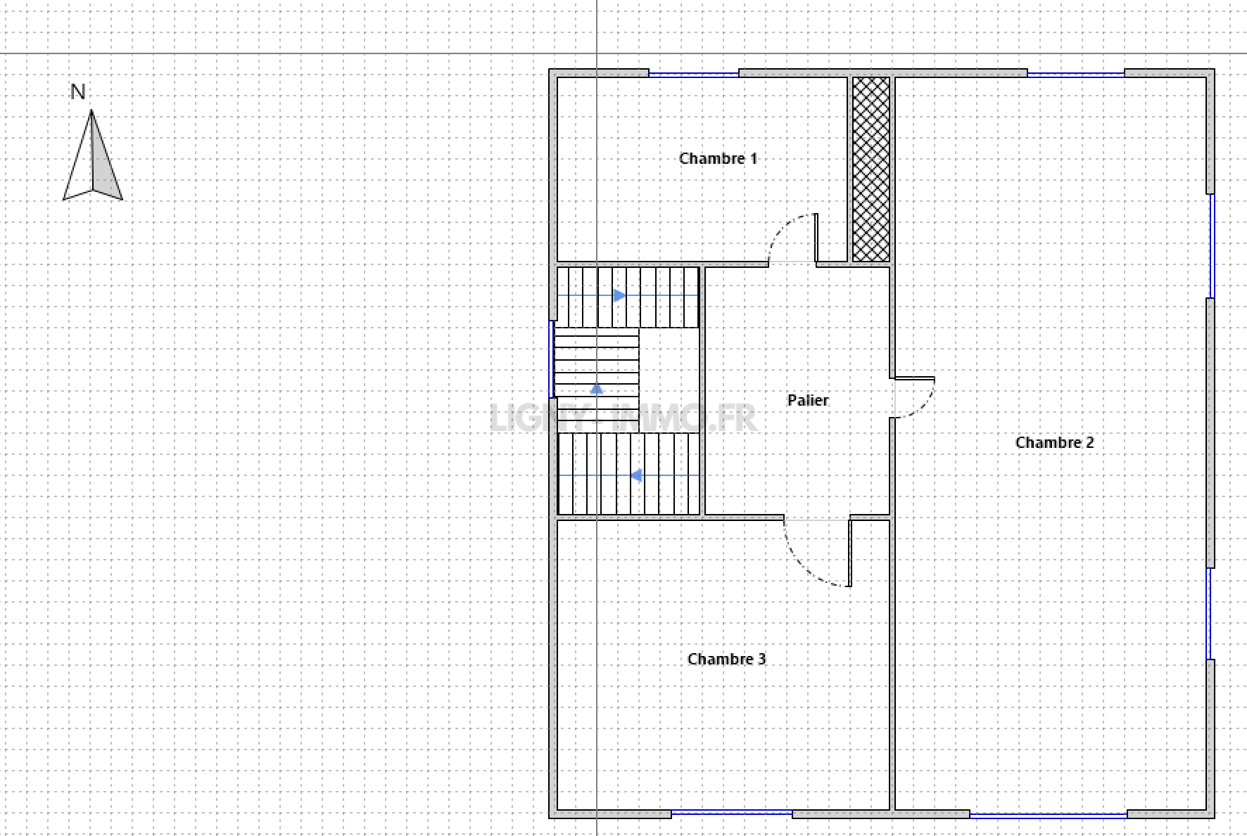
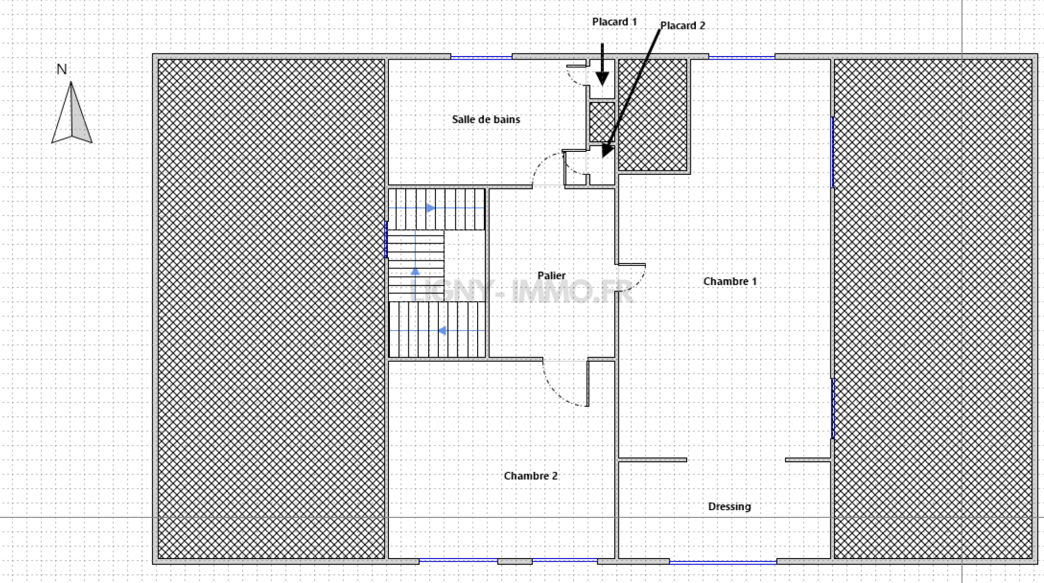
L'agence LIGNY-GASPARY vous présente en exclusivité cette demeure d'exception aux volumes généreux. Située à 10 minutes de NEUFCHATEL EN BRAY (76270) et à 5 minutes de LONDINIERES (76660), elle dispose d'une vaste entrée, d'une cuisine aménagée et entièrement équipée d'environ 35 m², d'une pièce de vie d'environ 70 m² offrant un espace unique, une buanderie et un WC au rez-de chaussée. Le premier étage se compose comme suit : - Une salle de bains, une très grande suite parentale à terminer, une chambre. Au deuxième étage : - Un spacieux bureau idéal pour le télétravail et deux chambres. Un carport d'environ 100 m² recouvert en ardoise neuve, une cave isolée, une chaufferie viennent compléter ce bien. Une pompe à chaleur, une très bonne isolation et des matériaux de qualité utilisés lors de la rénovation, font que ce bien combine confort et économies, bénéficant d'un classement énergétique en B. Rare sur le marché, contacter Caroline LEJEUNE pour toute visite ou renseignement au 06-76-63-13-01.
Code postal 76660
Surface habitable (m²) 265 m²
surface terrain 4 370 m²
Nombre de chambre(s) 4
Nombre de pièces 8
Nombre de niveaux 2
Nb de salle de bains 1
Cuisine SEPAREE
Type de cuisine EQUIPEE
Mode de chauffage Pompe à chaleur
Type de chauffage TRAD_TYPE_CHAUFF_AIR_EAU
Format de chauffage Central
Terrasse OUI
Nombre de garage 1
Nombre de parking 1
Copropriété NON
Prix de vente honoraires TTC inclus 329 000 €
* : Les informations recueillies sur ce formulaire sont enregistrées dans un fichier informatisé par La Boite Immo agissant comme Sous-traitant du traitement pour la gestion de la clientèle/prospects de l'Agence / du Réseau qui reste Responsable du Traitement de vos Données personnelles.
La base légale du traitement repose sur l’intérêt légitime de l'Agence / du Réseau.
Elles sont conservées jusqu'à demande de suppression et sont destinées à l'Agence / au Réseau.
Conformément à la loi « informatique et libertés », vous pouvez exercer votre droit d'accès aux données vous concernant et les faire rectifier en contactant l'Agence / le Réseau.
Si vous estimez, après avoir contacté l'Agence / le Réseau, que vos droits « Informatique et Libertés » ne sont pas respectés, vous pouvez adresser une réclamation à la CNIL.
Nous vous informons de l’existence de la liste d'opposition au démarchage téléphonique « Bloctel », sur laquelle vous pouvez vous inscrire ici : https://www.bloctel.gouv.fr
Dans le cadre de la protection des Données personnelles, nous vous invitons à ne pas inscrire de Données sensibles dans le champ de saisie libre
Ce site est protégé par reCAPTCHA, les Politiques de Confidentialité et les Conditions d'Utilisation de Google s'appliquent.